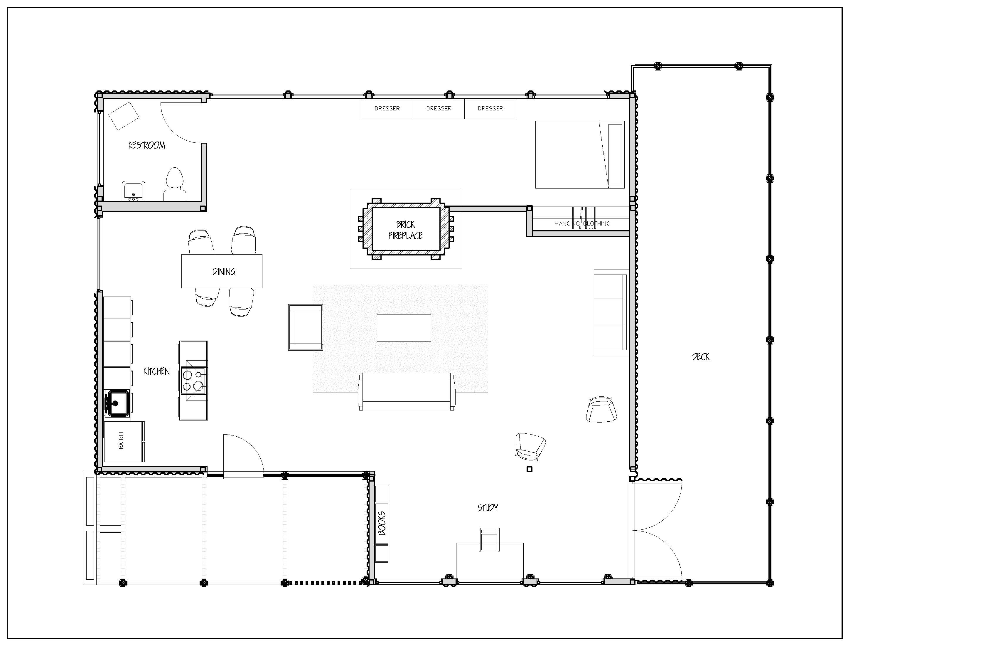
Shipping Container House

Designed for a friend trying to visualize a shipping container house on an open piece of land. This project is a single bedroom, 1,300 square foot house made using four shipping containers. Due to the durability and strength of the shipping containers themselves, the house could be built relatively easily by constructing a roof between the containers enclosing a much larger space.