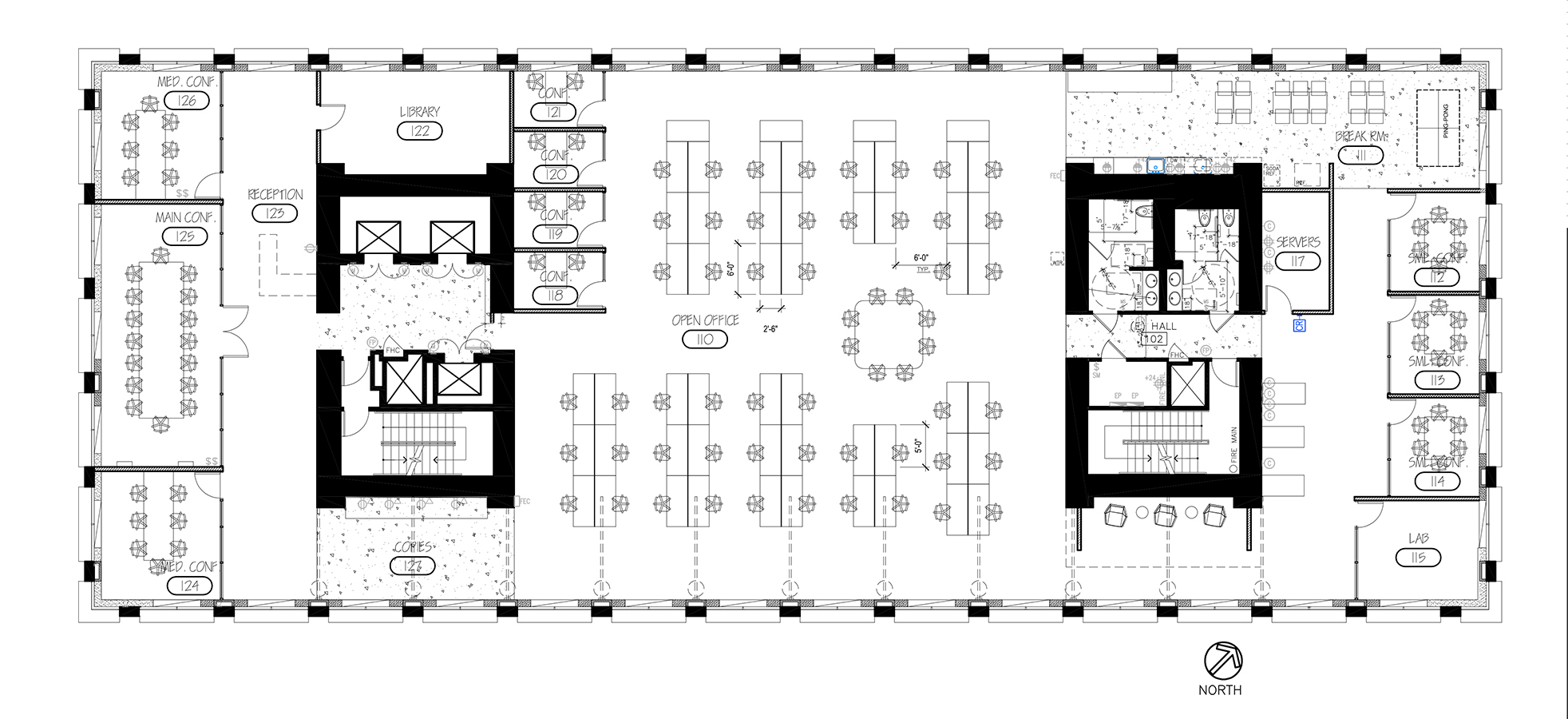
El Camino Office T.I.

This is a Tenant improvement on a single floor of an existing 11 story office building located in San Mateo CA.

This is a project I worked on while at Chang Architecture – only I’ve re-imagined the design. The scope, layout and requirements are still being met.

Rendered View of Desks
Open Office View
Employee Lounge View
Floorplan
Conceptual Sketch